咨询电话
18678018808地址:山东省潍坊市临朐县冶泉路2255号
联系人:白经理
手机: 18678018808
传真: 0536-3351116
邮箱: lqjiusheng@163.com
联系我们
18678018808
山东省潍坊市临朐县冶泉路2255号
2020-8-26
443

▌产品介绍
LB链板定量给料机,就上LB链板定量给料机的专用钢衬板环带是对高温散状物料和湿度较大的物料进行连续给料的理想设备。其技术先进、稳定可靠、性价比高、经久耐用,尤其适用高温环境,广泛应用于建材、冶金、电力、化工等行业的高温工艺环节。
▌性能特点
1、具有良好的耐高温特性,最高耐温可达300℃
2、对定量给料机胶带具有良好的保护作用,能有效防止硬物划伤
3、对湿度大的物料具有良好的拖动作用
4、将其安装于定量给料机上时,既具有胶带运转时的高平稳性和高计量精度,又具有链板带的高耐温性和高可靠性


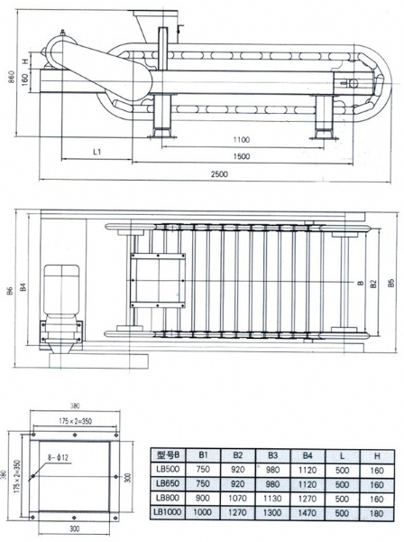
▌技术参数
规格型号 |
长度(mm) |
宽度(mm) |
厚度(mm) |
LB05 |
500 |
96 |
2.5~4 |
LB06 |
650 |
96 |
2.5~4 |
LB08 |
800 |
96 |
2.5~4 |
LB10 |
1000 |
96 |
2.5~4 |
LB12 |
1200 |
96 |
2.5~4 |
LB14 |
1400 |
96 |
2.5~4 |
LB18 |
1800 |
96 |
2.5~4 |